To Let | 3 Bedroom House | Garden | Off-Street Parking in SW16

Chillmark Road, London, SW16, Greater London, United Kingdom

April 27, 2026

Property Description
For Let £2500

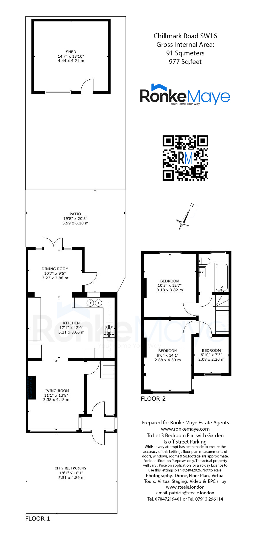
Ronke Maye Estate Agents are pleased to present this well-proportioned 3-bedroom house on Chillmark Road, SW16, offering generous living space, a private rear garden, off-street parking and a versatile garden shed.

The property is arranged over two floors and provides a practical layout suitable for families, professional tenants or sharers. The ground floor features a bright front living room with large window shutters, wood-style flooring and neutral décor. To the rear, there is a spacious open-plan kitchen and dining area, offering plenty of storage, fitted appliances and direct access to the garden through French doors.

Upstairs, the property offers three bedrooms, including two well-sized doubles and a smaller third bedroom, suitable as a child’s room, guest room, dressing room or home office. A modern family bathroom completes the first-floor accommodation, featuring grey tiling, bath with shower screen, WC, basin and heated towel rail.

Externally, the house benefits from off-street parking to the front and a private rear garden with patio area, lawn and a substantial shed/outbuilding. The outbuilding provides useful additional storage and potential workspace, subject to the tenant’s intended use and landlord agreement.

Chillmark Road is a residential road in SW16, offering access to local amenities, schools, green spaces and transport links across South London.

Key Features

  • Three-bedroom house
  • Two double bedrooms plus smaller third bedroom
  • Spacious open-plan kitchen/dining area
  • Separate front living room
  • Modern family bathroom
  • Private rear garden
  • Off-street parking
  • Neutral décor throughout
  • Suitable for families or professional tenants
  • Approximately 977 sq. ft / 91 sq. m
  • Available to let
  • Type

    Terraced
  • Build

    NA
  • Size

    NA
  • Lot Size

    NA
Property Map
Related Properties

£OIEO £400,000

Bensham Lane

London

  • Bedrooms

    4

  • Bathrooms

    2

  • Parking

    NA

Ronke Maye
  • Email: ronke@ronkemaye.com
View Profile
Contact with Ronke Maye
User Login

Lost your password?
Cart 0