Set on a quiet residential street in the heart of Sydenham (SE26), this well-presented one-bedroom first-floor, split-level apartment offering a sensible layout, strong transport links, and solid value for first-time buyers and investors alike.
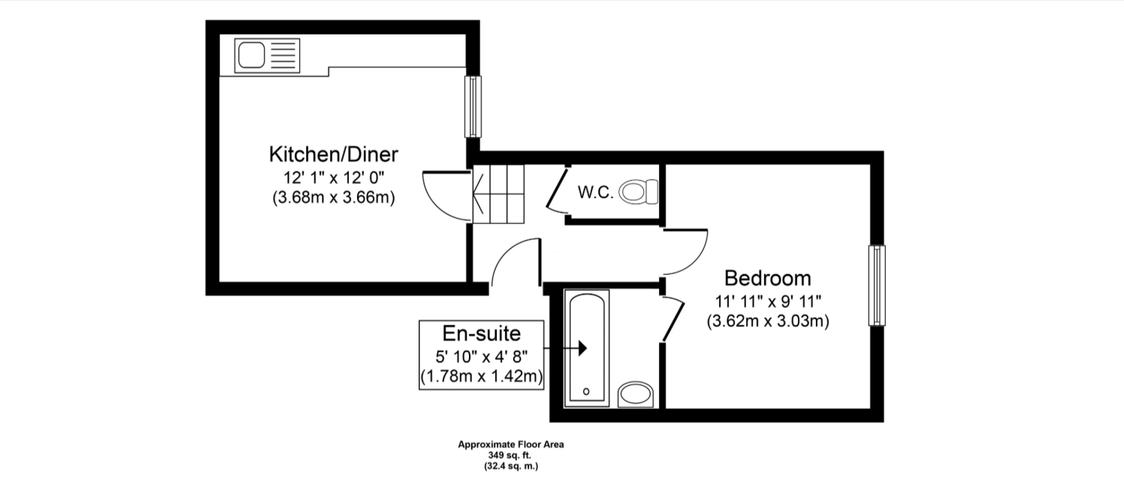
The property opens into a bright and practical reception room, currently arranged as a comfortable living space, which flows through to a well-sized kitchen/diner (approx. 12’1 x 12’0). The kitchen is fitted with modern units, an integrated oven, gas hob, extractor hood, and washing machine, with good worktop space and plenty of natural light from a large window.
The double bedroom (11’11 x 9’11) is well proportioned and benefits from direct access to a private en-suite bathroom. In addition, there is a separate W.C., which is a useful and relatively uncommon feature for a one-bedroom property at this level.
Throughout, the flat is neutrally finished with wood-effect flooring, creating a clean, move-in ready feel while still offering scope for a buyer to put their own stamp on it.
Byne Road is conveniently located for local amenities, green spaces, and transport. Sydenham Station offers direct routes into London Bridge and Canada Water, along with Overground connections. The surrounding high streets provide a good mix of independent cafés, supermarkets, and everyday essentials.
Overall, this is a straightforward and appealing option for a first-time buyer looking to get onto the ladder, an investor seeking reliable rental demand, or someone in need of a low-maintenance London base. Early viewing is advised.







