Ronke Maye Ltd are delighted to present this spacious and newly refurbished 4-bedroom mid-terrace house on Oaklands Road, NW2, ideally located close to Willesden Green and Cricklewood amenities.
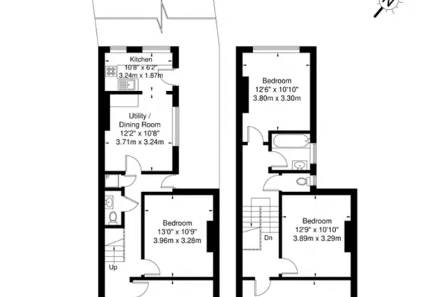
This charming family home offers over 1,400 sq ft of living space arranged over two floors. The ground floor features a bright bay-fronted reception room, a double bedroom, a modern kitchen, a utility/dining area, and access to a large private rear garden, perfect for entertaining or future development potential.
Upstairs, you’ll find three generous bedrooms and a contemporary family bathroom, all finished in a clean, neutral style with new flooring and freshly painted walls throughout.
The property benefits from gas central heating, double glazing, and a recently updated EPC rating of D (potential B).
Located within walking distance of Cricklewood Thameslink Station and Willesden Green Underground (Jubilee Line), this home offers excellent transport links into Central London and beyond. Local schools, shops, parks, and cafes are all nearby, making this a perfect choice for families, professionals and sharers alike.
















