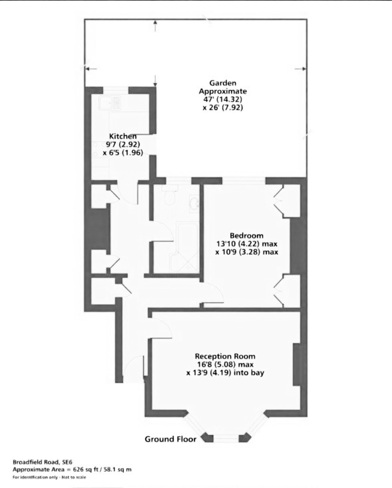
Set within the highly regarded Corbett Estate, this newly renovated one-bedroom period garden flat offers a rare combination of character, privacy and outdoor space.
Accessed via its own private front door, the property features a bright bay-fronted reception room, a generous double bedroom, separate fitted kitchen and modern bathroom, with well-planned accommodation throughout. A particular highlight is the sole access to a substantial private rear garden measuring approximately 47ft, providing exceptional outdoor space rarely available with one-bedroom flats.
Further benefits include off-street parking, useful storage, period features and a quiet residential setting, making this an ideal home for a professional couple or single occupant seeking quality accommodation in a sought-after location.
Broadfield Road is well known for its attractive period homes and established residential feel, with convenient access to local amenities, green spaces and surrounding transport connections.










